O FOCUS GROUP encontra-se a desenvolver para um promotor privado, os projetos de vários edifícios de habitação no concelho de Loures.
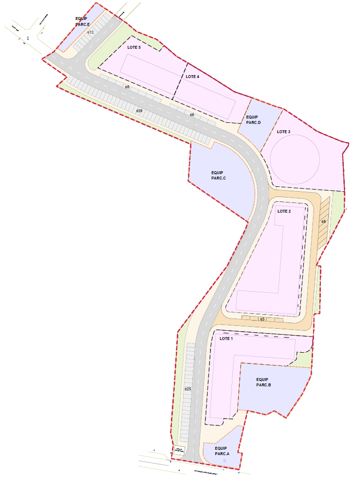
Com tipologias T1 e T2, prevê-se a criação de 149 novas habitações com 184 lugares de estacionamento em cave e que se esperam vir a complementar a oferta habitacional do concelho. Estes edifícios, repartidos por 4 lotes, têm no seu total 4.093,50 m2 de área de Implantação. Um dos lotes, prevê uma piscina instalada num logradouro comum ao nível do piso térreo.
Integrado num Loteamento já existente, o projeto incluiu também a elaboração dos projetos das obras de Urbanização da área de intervenção envolvente aos Lotes.
Área de intervenção: 15.407 m2 acima do solo e 9.895 m2 em cave (ABC) / 4.093 m2 (Área de intervenção) | 2025 | Em desenvolvimento
